| 解读单位 | 发布日期 | 2018-06-06 09:05:00 | |
|---|---|---|---|
| 解读类型 | 解读方式 |


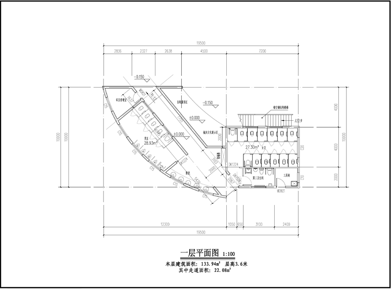
新华书店公厕平面图

摩尔城公厕平面图

摩尔城公厕效果图

摩尔城公厕多角度视图
公厕导航示意图
公厕是方便人民群众出行、满足人们日常生活需要的必备公共设施,为给出门在外群众提供良好的如厕环境,针对群众和外地游客反映找不到公厕和公厕标识看不清等问题,黄石港区城管局绘制了“黄石港区公厕示意图”。
黄石港区“厕所革命”推进情况
黄石港区委、区政府按照“政府主导,部门负责,社会参与,全民共享”的原则和“厕所革命”三年工作计划要求,大力推进公厕建设和升级改造,落实市定公厕建设规划目标。同时积极探索“以商建厕、以商管厕、以商养厕”建设管理模式,在万达广场、摩尔城等大型商业繁华区,高标准规划建设公厕,以满足人民群众需要。
从2018年开始,拟对城区42座老式公厕进行改造升级、9座拆旧建新、规划定点新建13座。截至目前,上述公厕的规划设计、施工设计及地形勘测已全部完成,最终实现每平方公里3-5座公厕的标准。
广泛征求群众对公厕建设改造意见
摩尔城和市新华书店作为市中心一个重要的商业区,人流量大,群众对公厕的需求较高,为让城市新建公厕更好为群众服务,符合群众要求和期望,决定面向社会广纳善议,就摩尔城新建公厕和交通路新市华书店门前新华书店公厕升级改造公开征求群众意见,具体如下:
1、您认为功能区划分是否合理?
2、您对公厕内部装饰有何建议?
3、您对公厕外观设计有何意见和建议?
4、对公厕里面的预留的公共部分,您需要什么自助服务?
5、您是否还有其它意见和建议。
意见建议收集电邮:3119458535@qq.com
微信群二维码:

如厕虽事小,小事显文明。解决好群众“方便”之事,既是城市文明建设的必须要件,也是政府不断改善服务的具体体现。黄石港区委、区政府在做好公厕建设改造的同时,还将结合城区基础设施建设实际情况,适时为群众提供路边小憩、问路、应急小药品、先进文化展示等便民服务,通过城区基础设施升级改造,着力加大服务软环境建设,不断提高城市管理服务水平和能力。